Tiki Central / Home Tiki Bars
Blowfish Bar – Flagler Beach, FL
Pages: 1 2 3 4 5 6 7 318 replies
|
T
TikiTomD
Posted
posted
on
Sat, Jan 15, 2011 8:19 AM
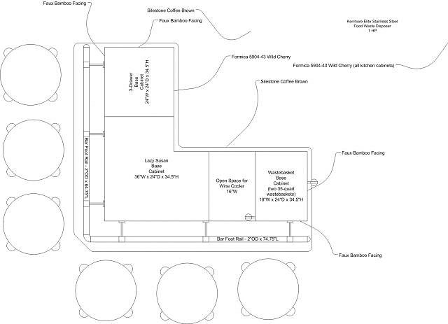
Our beach house has limited space and no stand-alone room to spare for a home tiki bar. So, I entered a plea deal with the spousal unit: in return for letting me replace the dining area table with a tiki bar, I agreed to remodel the adjoining kitchen. After giving away the dining table and demolishing the small breakfast bar which inconveniently seated a couple of folks directly in front of refrigerator doors, I created an L-shaped bar from base kitchen cabinets with space and an electrical receptacle for an under-counter wine cooler. The base cabinets (34.5”H x 24”D) were tied together with ¾” plywood sheets screwed into their back sides, forming the unfinished bar face. Taking a tip from DJKen in his TC post of last year, I obtained bronzed faux bamboo panels and molding from Texture Plus via their online web site (http://www.textureplus.com). These were then applied to the face of the bar using construction adhesive and a brad nail gun. The bar counter top is engineered quartz (Silestone), professionally cut and installed as a concession to the spousal unit (aka “she who must be obeyed”) who insisted on easy cleanup and no-maintenance durability. Next, a tiki bar overhead shelf unit was constructed of plywood finished with bronzed faux bamboo panels and molding, supported from the counter top by 24”H TikiBosko custom carved redwood poles. The overhead shelves on the bar face provide space to display tiki mugs and the like, while overhead shelves behind the bar accommodate storage of spirits and glassware. A polished brass bar foot rail ordered from KegWorks (http://www.kegworks.com) was assembled, cut to length and attached to the bar face using screws. Finally, a custom bar sign carved by TikiBosko (http://www.tikibosko.com) was hung from the ceiling joists using stainless steel eye lag bolts and locking spring snaps, and a puffer fish (blowfish) lamp by Swanky was emplaced atop the overhead bar shelf unit. Here’s a photo illustrating the “before” condition. Many of the cabinet doors were warped from water intrusion when the Florida hurricanes of 2004 liberated some of the roof shingles and subroof:
And here are photos illustrating the completed project, after an effort spread over several months:
|
|
M
MustangScott
Posted
posted
on
Sat, Jan 15, 2011 10:46 AM
I think it looks great! |
|
L
leleliz
Posted
posted
on
Sat, Jan 15, 2011 12:18 PM
As a former Florida gal I understand about water damage from Hurricanes :( Love the built in shelves ...esp the color. My only question..are those bar stools sturdy? They look so delicate---or is that just the way they photograph? I think you have done a great job as well |
|
T
TikiTomD
Posted
posted
on
Sat, Jan 15, 2011 1:25 PM
Thank you for the appreciative comments, MustangScott and leleliz... we're sure enjoying sitting at the bar looking out at the ocean dreaming of far-away places channeled, of course, by tiki spirits of the liquid kind. leleliz, the bar stools are certainly slender limbed and do appear delicate until you handle them or sit in them. They are actually heavy gage metal painted to look like bamboo, with metal rings welded to the legs and chair back at the simulated bamboo joints. They are commercially available as "Hillsdale 26-in. West Palm Swivel Counter Stool - Burnished Brown" from http://www.barstools.com. The seats are well padded and they swivel, but do not sway or give when seating even large-bodied tiki tipsters. We got a good deal on them, free shipping and heavily discounted so that the sixth bar stool was in effect free. Tom |
|
BK
Big Kahuna
Posted
posted
on
Sun, Jan 16, 2011 9:15 AM
I'm diggin' the Blowfish Bar, but I really love the Tiki Tom graphic, that is killer! |
|
J
jokeiii
Posted
posted
on
Sun, Jan 16, 2011 9:33 AM
Some in-progress pictures would be great! |
|
T
TikiTomD
Posted
posted
on
Sun, Jan 16, 2011 10:35 AM
Big Kahuna, the Tiki Tom graphic is a personal logo dreamed up and created by that Wildsville artiste, Derek Yaniger. Writeup and graphic are included near the end of Derek's news blog of March 22, 2010 entitled "Peep the Poop!" at http://derekart.com/news/?paged=2 (you have to scroll down a bit). jokeiii, sorry but I was so busy with rushing to the end state with my limited vacation and holiday time that I skipped the in-progress photographic recording. However, I'd be glad to answer any particular questions about the construction. I created a layout drawing and bar profile before starting this to see how it would fit, including height from the sloping white beadboard cathedral ceiling. The biggest challenge was the tiki bar overhead shelf unit, custom constructed as four subassemblies in order to fit through doorways and stairway, allow attachment to the tiki top poles and not be too heavy to handle. The bottom L-shaped plate or base of 3/4" plywood with laminate finish surface (underneath side) was first, with screws and adhesive securing it to the supporting countertop tiki poles. The six tiki poles were secured to the quartz countertop with construction adhesive. Next the entire L-shaped inside shelving was assembled as one unit with plywood and stringers, with outside face that lipped over the base plate to be flush with the bottom. Note that the height of each horizontal shelf base was sized to be covered by the 3-1/2" width of the faux bamboo molding. It took three of us to lift and position the inside shelf unit over the base plate. Each leg of the L-shaped outside shelf was then assembled as a separate unit, and each was hauled up and positioned on the base plate. All three shelf assemblies were aligned atop the base plate, then screwed together and to the base plate. Next, the faux bamboo panels and molding were applied using construction adhesive and brad nail gun to create the finished surface. The bottom and top surfaces of each shelf were finished with laminate (Formica in wild cherry color pattern) to provide a smooth surface and blend with the color of the bronzed faux bamboo. Tom |
|
G
GatorRob
Posted
posted
on
Sun, Jan 16, 2011 3:50 PM
Nice job! I've always liked corner bars. Gives people the chance to sit at the bar and still look at each other while talking. The Bosko support posts give it that much needed tiki infusion. Now, get to work on those white walls and ceiling. :D |
|
T
TikiTomD
Posted
posted
on
Sun, Jan 16, 2011 5:01 PM
Thanks for the feedback, GatorRob... any suggestions for the walls and ceiling? I'm a bit constrained by sharing space with the adjoining kitchen and great room, so the spousal unit exercises a deciding vote, though she is tiki-appreciative (at least she continues to be pretty accommodating). Tom |
|
V
VampiressRN
Posted
posted
on
Mon, Jan 17, 2011 5:23 AM
Very nicely done...sure blends in well with the existing kitchen. Gorgeous cabinets, countertop and stools. I love the name of the bar and it must be great to look out into the distance at the ocean while enjoying a cocktail. |
|
M
McTiki
Posted
posted
on
Mon, Jan 17, 2011 1:04 PM
Very nice digs....and from Titusville of all places! McTiki is your neighbor. Living on a nearby Island. Mahalo and welcome to TC! McTiki |
|
BB
Bongo Bungalow
Posted
posted
on
Mon, Jan 17, 2011 1:23 PM
A really fresh take on tiki decor! |
|
T
TikiTomD
Posted
posted
on
Mon, Jan 17, 2011 5:44 PM
Mahalo for your feedback, VampiressRN, McTiki and Bongo Bungalow. Ahh, it’s great to have a tiki neighbor, McTiki, presumably on Merritt Island… alas, as you well know, Titusville is no Tikiville, at least not since the halcyon days of the Moon Islander. It is currently our commuter pad to work at the nearby rocket ranch, but we “live” at our beach home 70 miles up the coast, featured in this forum topic. Consider that in 1881 Titusville’s founding father, Col. Henry T. Titus, a gentleman of mysterious past, wrote that "Titusville is the grand center of all trade and will so continue to be. Her motto is to live and let live." Four days after his words appeared in print, he died, according to the local historical society. That about sums up the Titusville experience. Tom |
|
UT
uncle trav
Posted
posted
on
Tue, Jan 18, 2011 6:34 AM
Tom, fantastic job and well done. Looks very inviting. A mai tai always taste better in a bamboo environment I think. You say you work at the "rocket ranch"? I grew in Ft. Myers on the other coast of Fla. On a clear day I could see the shuttle launches from way over there. I still miss that. Keep up the good work and thanks for sharing the pics. The bar looks great. |
|
T
TikiHardBop
Posted
posted
on
Tue, Jan 18, 2011 9:56 AM
TikiTomD: Good work on the digs. And you'll find that Brevard has a more hopping tiki scene than you would think. Away from T-ville, of course, but everything is away from Hooterville. Be on the lookout for our annual Pre-Hukilau get-together at The Storm Shelter (my home bar) in Rockledge. You can check it out at http://www.tornadotiki.com/ and we also have a Brevard Tiki group on Facebook. |
|
T
TikiTomD
Posted
posted
on
Tue, Jan 18, 2011 10:48 AM
uncle trav, I’m indeed a rocket ranch veteran. I was fortunate to be part of the launch operations engineering team for the Space Shuttle Orbiter at Kennedy Space Center in the early days leading up to the inaugural launch of the Shuttle (Columbia) in April of 1981. For some time now, I’ve been working on the large unmanned expendable rockets at the Cape. Decades ago I recall visiting the former winter home and laboratory of Thomas Edison in Ft. Myers. He planted a beautiful tropical garden that exists to this day. I can just imagine him sitting amongst the palm trees, ficus and bamboo in his garden at the end of the day while watching the sun sink low over the Gulf of Mexico and sipping his latest invention, the precursor of the Zombie… something he shared with a certain traveler adventurer named Ernest Raymond Beaumont Gantt (later known as Donn Beach) before his passing in 1931. This didn’t really happen, I’m sure, though I’d like to think that one of the world’s most prolific inventors ever could have been a master mixologist. Thanks so much for sharing your impressions, and please stay warm… it must be hard for a former Floridian to thrive in a Michigan winter; you must be hibernating in that basement tiki bar. TikiHardBop: I’m astounded that you, McTiki and apparently a lot of other tiki tipsters are in my immediate neighborhood… we must have crossed paths at Hukilau 2010, but in my case without proper preparation in The Storm Shelter. I’ll be on the lookout for this year’s event. Tom |
|
T
TikiTomD
Posted
posted
on
Sat, Jan 22, 2011 12:16 PM
The Blowfish Bar is now home to a beautiful vintage style mini tiki hut from the exotic isle of Kalamazoo, Michigan. Mahalo, uncle trav!
Here’s the view from the Blowfish Bar, looking out over the Atlantic Ocean and Gulf Stream about 20 miles north of Daytona Beach...
Been busy filling up the overhead shelves behind the tiki bar; now if only I could find a local source for demerara rum (El Dorado) and St. Elizabeth Allspice Dram…
|
|
UT
uncle trav
Posted
posted
on
Sun, Jan 23, 2011 5:44 AM
The hut has a new home by the sea. Tiki huts are made to have an ocean view. Thanks for posting a photo of the hut in the beautiful Blowfish Bar. Good luck in your search for the good stuff. |
|
T
TikiHardBop
Posted
posted
on
Mon, Jan 24, 2011 10:12 AM
If you're looking in the T-ville area, Florida Wine and Spirits, 1921 Knox McRae Drive in the Publix shopping plaza , should have everything you need and what they don't have they can get. I go to the location in Viera and have never been disappointed. |
|
T
TikiTomD
Posted
posted
on
Mon, Jan 24, 2011 1:21 PM
TC is certainly a wonderful neighborhood, inhabited by talented, interesting and helpful folks. TikiHardBop, you pointed me to the gold in your tip on Florida Wine & Spirits. This establishment slipped in under my radar at the Titusville Publix shopping center on Knox-McRae Drive. While St Elizabeth Allspice Dram is not presently stocked at this location, they’ll have it here tomorrow afternoon from the Viera store. Also, they have in stock El Dorado 12-year and Special Reserve 15-year rums, among other good stuff. I’ve already reserved a stash for the Blowfish Bar. Mahalo, George! Tom |
|
T
TikiTomD
Posted
posted
on
Sat, Feb 5, 2011 9:13 AM
Here's some layout and profile drawings I put together before starting tiki bar construction:
|
|
V
VampiressRN
Posted
posted
on
Sat, Feb 5, 2011 10:32 AM
Fabulous view...I always think cocktails taste better looking out at an ocean, bay, or lake. I'm sure the hut is enjoying its new home. :) |
|
T
TikiTomD
Posted
posted
on
Sat, Feb 19, 2011 1:16 PM
It’s a fabulous beach day at the Blowfish Bar, with cloudless sky and balmy temperatures in the low 80s. The trade winds have again blown favorably, bringing another treasure from the exotic isle of Kalamazoo crafted by Uncle Trav, that gifted maker of wee vintage Polynesian huts. Though birthed in arctic climes, it now basks on a warm shelf amidst kindred keepsakes evoking dreams of enchanting locales.
A Japanese glass fishing float has recently joined the iconic puffer fish atop the bar shelf unit, and Bosko masks are en route via tramp steamer after rendezvous at a port near Escondido.
Thanks for looking, everyone… and greatly appreciate your impressions, VampiressRN. As the day wanes at the Blowfish Bar, we’ll be making Zombies the easy way using Trader Tiki’s Don’s Mix and page 169 of the Bum’s Remixed. Here’s to good fortune among tiki tipsters everywhere!
|
|
UT
uncle trav
Posted
posted
on
Wed, Feb 23, 2011 4:48 AM
The home bar is looking great Tom. The huts look at home near the beach. Indeed the huts were born in an Arctic climate as this weekend we had a lovely ice storm complete with power outages. If I can mail myself down in a box can I sit up on the shelf until I thaw out :D I really like the plans for the bar that you made on the computer. Thanks for sharing the photos. |
|
E
ErkNoLikeFire
Posted
posted
on
Wed, Feb 23, 2011 10:08 PM
I love the look of your bar, but after the weather here, I'm more envious of you view at the moment. |
|
T
TikiTomD
Posted
posted
on
Thu, Feb 24, 2011 11:47 AM
I suppose it was somewhat unfeeling to post balmy beach photos while some of you in the far northern reaches of the tiki realm are still enduring arctic conditions. I was merely trying to restore karmic climatic balance to Tiki Central after bigbrotiki posted that bleak winter’s eve photo in Hamburg (http://www.tikicentral.com/viewtopic.php?topic=39222&forum=17&vpost=576917). Trav, you and ErkNoLikeFire are welcome to thaw out at the Blowfish Bar anytime. I’ll get you started with a Flaming Coffee Grog (Bum’s Remixed, page 126). -Tom |
|
T
TikiTomD
Posted
posted
on
Sun, Mar 27, 2011 5:16 AM
A serenely beautiful ocean sunrise this morning at the Blowfish Bar that no photo can adequately capture…
Uncle Trav’s hut #4 traversed the treacherous winter reaches of the Great Lakes to safely sail into this balmy port during the week…
Mahalo, Trav, for artfully recreating Polynesia in a size that fits the bar.
We’ve been accessorizing the bar and adjoining areas a bit with an eclectic array of Hawaiiana, tiki and primitive objects by Bosko, Shag, Derek Yaniger and others…
A serigraph from Wade Koniakowsky…
Then there’s that most important element of the tiki bar beyond atmosphere and good drink, affable company. Tango, our standard poodle, is always ready to fulfill that role…
Nothing like a mai tai in the morning…
Mahalo to everyone for looking. |
|
UT
uncle trav
Posted
posted
on
Sun, Mar 27, 2011 5:41 PM
Tom you are a true patron of the arts. Your place is looking great. Looks like Tango enjoys it as well. A perfect location for the Blowfish Bar. A very relaxing and inviting spot for cocktails I would say. |
|
T
thePorpoise
Posted
posted
on
Tue, Mar 29, 2011 7:53 PM
I love Flagler Beach, havent been there in ages. saw whale spout out there once. |
|
T
TikiTomD
Posted
posted
on
Sat, Jun 25, 2011 6:09 AM
Porpoise, totally agree with you about Flagler Beach. It’s really special, a beach town right out of the 1950s. It’s been referred to as the “Peter Pan” of Flagler County as it is the city that refuses to grow. The birth of nearby Palm Coast in the 1960s preserved the charm and funkiness of the place by attracting all the uncontrolled population growth, condos, gated communities, yacht clubs, hotels, big box stores and chain restaurants. Flagler Beach retained its mom-and-pop, one-of-a-kind motels and cafes. I spent my childhood and early teens here in the 1950s and 1960s, so I have first-hand memories of then and now. On whale sighting, it’s a great location to observe highly endangered North Atlantic right whales, especially from the pier. They migrate to just offshore between December and March of each year for birthing and nursing their calves. A Flagler Beach hometown girl, Frieda Zamba, was the four-time women’s pro surfing champion of the world during the 1980s. Believe she lives in the Satellite Beach area now.
Flagler Beach is on a coastal barrier island and was originally known as Ocean City Beach, but the US Postal Service requested its name be changed to avoid confusion with like-named places in New Jersey and Maryland, so in 1923 it was renamed in honor of Henry Flagler (the railroad magnate), a personal friend of the founder, George Moody. In 1929, the town fathers established an emergency airfield with a flashing beacon several blocks west and extending to a block north of where the Blowfish Bar is now located. Two years later, one of the most famous aviators of all times, Charles Lindbergh, made an unexpected landing there... Charles Lindbergh next to his Army biplane in Flagler Beach The Evening Independent November 28, 1931 The Lewiston Daily Sun November 30, 1931 Lindbergh returned again for a longer stay in 1934. Amelia Earhart landed at this same field in 1936, as did Admiral Richard Byrd in 1932. The airfield was abandoned circa 1945, but you can still hike the marshy preserve that was the site of it over a boardwalk to the Intracoastal Waterway. At the center of town for more than 80 years, the Flagler Beach Pier has been rebuilt many times after hurricanes shortened its nominal 1,000-foot length. Its current length is 806 feet. Since the 1960s, it has featured an A-frame entry, but no tikis.
There are some great seaside “tiki” bars and cafes here. One of my favorites is The Golden Lion, established by Tony Marlow, an expatriate Brit from London by way of St. Kitts... love the Thai fish tacos here, and the tropical cocktails are pretty good, too.
Another great place for fish tacos and fish burritos...
Flagler Beach is very much an escape to another place and time, in common with tiki culture. The public décor of the place is, however, principally a coastal nautical style, somewhat dominated by surf culture icons (boards, woodies, etc), with a sprinkling of Caribbean elements. There are a few tikis to be found, usually in a mixed setting, such as this one a block south of the Blowfish Bar...
The iconic Polynesian pop landmarks of the area, cited in Sven Kirsten’s Tiki Modern, are another 15 to 20 miles to the south along coastal Highway A1A in Ormond Beach and Daytona Beach. But, if you like pirates, Flagler Beach has pirates...
-Tom |
|
T
TikiTomD
Posted
posted
on
Sat, Jun 25, 2011 9:25 AM
Hukilau 2011 was the best of times, and memories of new and old tiki friends and the Mai-Kai strongly linger. Now the challenge is to find a place for all that Hukilau booty. The prize was Swanky’s Mai-Kai Mystery Girl Bowl, beautifully crafted by Kristina Lucas Francis...
I’m grateful to Tim Glazner (Swanky), photo below from Hukilau, for holding onto his dream and making it a reality...
Making room above the bar for a couple of “Tiki for 2” mugs sculpted by Kevin Kidney and produced by Munktiki for Hukilau...
Mahalos to Kevin Kidney (left) and Jody Daily, photo below from Hukilau...
Above the side of the bar was room for the Mai-Kai Maru Amu mug and an Orchids of Hawaii Hula Girl Inset mug...
The blowfish tile from Tortuga Tile Works found a home above the sink...
Now contemplating a Polynesian mural similar to Julian’s on the wall above the stairway, but will have to find an artist and $$$$...
-Tom |
|
L
littlegiles
Posted
posted
on
Sat, Jun 25, 2011 10:09 AM
Tom, you have a beautiful place there. Thanks so much for sharing pictures. Congrats on the Mystery Girl mug/bowl. She looks great up there in her own little niche. |
|
T
tikiskip
Posted
posted
on
Sat, Jun 25, 2011 11:01 AM
Love the use of Bosko. |
|
V
VampiressRN
Posted
posted
on
Sat, Jun 25, 2011 3:00 PM
Wow Tom...your place is looking classier and classier!!! That Blowfish Tile is fabulous. :) |
|
B
bigbrotiki
Posted
posted
on
Sun, Jun 26, 2011 11:18 AM
Very interesting: It seems to be a Florida custom to use the A-Frame as a sign.I thought Julian's was unique in that way, but then that shopping center with The Tropics, Ellinor Village appeared, and now this entrance. This is very much in keeping with the Googie and Roadside architecture concept of "the building as a sign". |
|
T
TikiTomD
Posted
posted
on
Mon, Jun 27, 2011 5:37 AM
Mahalos to everyone for looking, and thank you for the positive feedback littlegiles, tikiskip and VampiressRN!
Sven, interesting observation... I'm going to see if the Flagler Beach Historical Museum can unearth the particulars on how the Pier A-frame came about...
-Tom |
|
T
TikiTomD
Posted
posted
on
Sun, Jul 10, 2011 6:55 AM
With encroaching darkness, a Swanky puffer fish lamp has served from the beginning as the valiant, but lonely beacon of the Blowfish Bar. It's been sufficient to plot a general course, but after a few high proof tropical cocktails, it's been apparent that some additional aids to navigation were needed to avoid piling up on the reef. The solution... TikiSkip red float lamps, hung from the corners of the overhead shelf unit...
-Tom |
|
TBK
The Blue Kahuna
Posted
posted
on
Sun, Jul 10, 2011 8:01 AM
Inspirational! |
|
T
tikiskip
Posted
posted
on
Sun, Jul 10, 2011 9:09 AM
That's exactly where I thought they should go. |
|
PP
Pele Paul
Posted
posted
on
Mon, Jul 11, 2011 8:31 AM
wow very very cool!! looks like a 5 Star resort!!! Id stay there for sure!!!!! paul |
|
T
TikiTomD
Posted
posted
on
Sat, Jul 16, 2011 9:12 AM
Thank you, Blue Kahuna, TikiSkip and Pele Paul, for the feedback and encouragement. The home bar is an ever evolving enterprise... I've been talking to a local artist about painting a mural on the stairway wall adjacent to the Blowfish Bar. Here's an early concept sketch using the same Polynesian scenery elements presented in panoramic glory on the mural at Julian's, but flipped around and scaled down a bit; the artist intends to alter details to his own style (scanned image truncated a bit)...
-Tom |
|
T
TikiTomD
Posted
posted
on
Sun, Jul 17, 2011 9:36 AM
Party time at the Blowfish Bar last night! Joining us were our Space Coast friends, TikiHardBop (George), TornadoTiki (Chris), and metikigal (Christina), as well as Miami friends, Joanie and Oliver. Mai Tais were the featured drink. Two variations were offered. One was based on the contemporary “Royal Mai Tai” created by Joey Gottesman, an “island” (aka “tourist”) style cocktail offered at the Royal Hawaiian Hotel’s Mai Tai Bar in Waikiki and first featured in the July/August 2009 issue of Hawai’I Magazine: http://www.hawaiimagazine.com/blogs/hawaii_today/2009/10/8/mai_tai_Hawaii_recipe_Moose_Royal+Hawaiian/2 Royal Mai Tai ingredients While a very flavorful drink, all of us agreed that it was quite a bit sweeter than our taste preferences, much in common with the Mai Tais we encountered on our Hawaiian island vacations. The cocktail that we all agreed was very fine (“the best”) was based on the original Trader Vic Mai Tai recipe recapped on page 71 of Beachbum Berry Remixed, with slight modifications: 1 oz amber Martinique rum (used Saint James) The spousal unit, Pat, made appetizers to balance the cocktail spirits. Being of Italian heritage, she over-excelled with this task, with a rollout of food that included Native Drums (page 31 of Beachbum Berry’s Taboo Table); smoked salmon dip; boiled jumbo shrimp and cocktail sauce; meat balls; summer sausage, cheese and crackers; pigs in a blanket, and salsa with tortilla chips. This sure didn’t leave much room for our planned dinner trip to Julian’s. Swanky’s Vinyl Exotica I and Vinyl Exotica II (http://www.swankpad.org/exotica/exotica.htm and http://www.swankpad.org/exotica/exoticaii.htm) rendered the perfect sound ambience. Playback was from an iPod Touch connected to a Bose Wave Music System. After a few drinks, we found out from Joanie that Oliver plays a mean guitar. So, we dispatched Joanie to retrieve his guitar and were rewarded by an afternoon of spirited guitar play, passionately delivered in a variety of musical genres. Not only was Oliver a talented player, but he was also an equally talented vocalist. Chris (TornadoTiki) and Christina (metikigal) George (TikiHardBop) Christina and Pat Oliver Oliver and Joanie Calista, our standard poodle, seeking attention Chris and Christina, with Tommy and Joanie at edges Tommy (our son) and Kathy Tango, our other standard poodle, just chillin' A gift to the house of George’s peach-mint infused bourbon liqueur We all concluded the day with dinner at Julian’s Dining Room and Lounge in Ormond Beach. Chris and I, as designated drivers, curtailed our intake several hours before departure, intended at 6:30 pm but actually closer to 8:00 pm, while we partied to Oliver’s guitar play. The food at Julian’s was excellent as usual, though the entertainment was not. Fortunately, the latter was drowned out by the banter of the dining room crowd. Christina and Julian’s magnificent Polynesian mural Joanie and Oliver at Julian’s Life was indeed good in the great company of friends, the best of all mixers... -Tom
[ Edited by: TikiTomD 2011-07-18 16:01 ] |
|
T
TikiHardBop
Posted
posted
on
Mon, Jul 18, 2011 9:55 AM
Tom, the mural idea sounds very cool. I think it would be a cool idea of actually re-creating the mural from Julian's, but from a different angle. And I bet if you put your engineer hat on, you could probably figure out the exact angle from your house to the mural at Julian's. Kind of like having super-duper X-ray vision. And then you could really freak out guests when you take them to Julian's!!! And much mahalo for the gracious hospitality. I thought I could smell mai tai's coming out during my bike ride to work today! We'll have to do it again before the weather changes. And add some beach time to the visit next time! |
|
T
TornadoTiki
Posted
posted
on
Mon, Jul 18, 2011 2:18 PM
We had a great time at Tiki Tom and Pat's, and Julian's was a treat for its food and for that luminous mural. Here are a few photos from the evening. |
|
T
teaKEY
Posted
posted
on
Thu, Jul 21, 2011 5:18 AM
Looks to be fun times and the mural over the local bar is magic. |
|
T
teaKEY
Posted
posted
on
Thu, Jul 21, 2011 5:19 AM
Looks to be fun times and the mural over the local bar is magic. |
|
S
Swanky
Posted
posted
on
Thu, Jul 21, 2011 6:42 AM
Great to meet you guys and glas the Girl got home safe! Maybe we'll get down for a visit next year. |
|
T
TikiTomD
Posted
posted
on
Sat, Jul 23, 2011 8:49 AM
Chris (TornadoTiki), thanks so much for posting your photos. Hope you and George (TikiHardBop) are having spirited times this weekend in New Orleans at "Tales of the Cocktail." I'm looking forward to our next soiree at the Blowfish Bar, beach included at no extra charge. I see that Christina (metikigal) posted her reflections of the visit and some photos in her blog under "Micro Road Trip" at... http://themetikigal.blogspot.com/ teaKEY, appreciate your visit here. Julian's mural is indeed magic and must be seen in person to fully appreciate. If you're ever in the Central Florida vicinity, let me know... Tim (Swanky), we adore that Mai-Kai Mystery Bowl girl; you can see that she's in her own little alcove. Love to have you visit the Blowfish Bar anytime... maybe you can help me deplete my stock of St. Elizabeth Allspice Dram by way of Jasper's Jamaicans. -Tom |
































































































